+7 495 740-29-89
пн-пт: 10:00—19:00
сб: 11:00—14:00
Туроператор
АС-тревел
Club Med на Вернадского

Размещение в Club Med Changbaishan

Вернуться к описанию курорта

Курорт Club Med Changbaishan расположен в сердце исключительной природной зоны и сочетает в себе традиции и современность. В дизайне номеров используются этнические мотивы, чтобы вы ощутили маньчжурскую культуру. Обилие дерева делает пространства уютнее. Любуйтесь окружающими красотами в кругу семьи у большого окна или на балконе, держа в руках кружку горячего чая. Пришло время замедлиться и разделить запоминающиеся моменты со своими близкими.

Курорт предлагает гостям размещение в номерах двух основных типов: Делюкс (в том числе семейные и номера повышенного комфорта Мастер Делюкс) и Сьют.

Номера Делюкс

Номер категории Deluxe
с балконом

A3+

План номера Делюкс в Club Med Changbaishan

Номер Делюкс в Club Med Changbaishan

Номер Делюкс в Club Med Changbaishan

Номер идеально подходит для пар и семей, которые ищут комфорт и современность (размер кровати позволяет разместиться 2 взрослым и 1 ребенку). Светлые тона дерева и бежевые оттенки мебели освежают интерьер. Красочные этнические узоры на большом ковре и обоях прославляют маньчжурскую культуру, создавая теплую атмосферу и добавляя живости.

Площадь номера: 35—36 м2

Количество гостей: до 3 чел.

Семейный номер Deluxe Family

A4

План номера Делюкс в Club Med Changbaishan

Номер Делюкс в Club Med Changbaishan

Это пространство по достоинству оценят большие семьи, ищущие комфорт. В главной спальне есть 2 кровати для детей и кровать с татами, что придает интерьеру очарование и оригинальность. Светлые тона и дерево создают уютную атмосферу. Декор вдохновлен местной культурой и сочетает в себе традиции и современность: маньчжурские узоры использованы для декорирования стен.

Площадь номера: 60 м2

Количество гостей: до 4 чел.

Семейный номер Master Deluxe Family

A5

План номера Делюкс в Club Med Changbaishan

Номер Делюкс в Club Med Changbaishan

Номер Делюкс в Club Med Changbaishan

Номер Делюкс в Club Med Changbaishan

Идеально подходит для семей, ценящих комфорт.Декор, вдохновленный местной культурой, сочетает в себе традиции и современность: стены декорированы с использованием маньчжурских узоров.

Площадь номера: 35 м2

Количество гостей: до 4 чел.

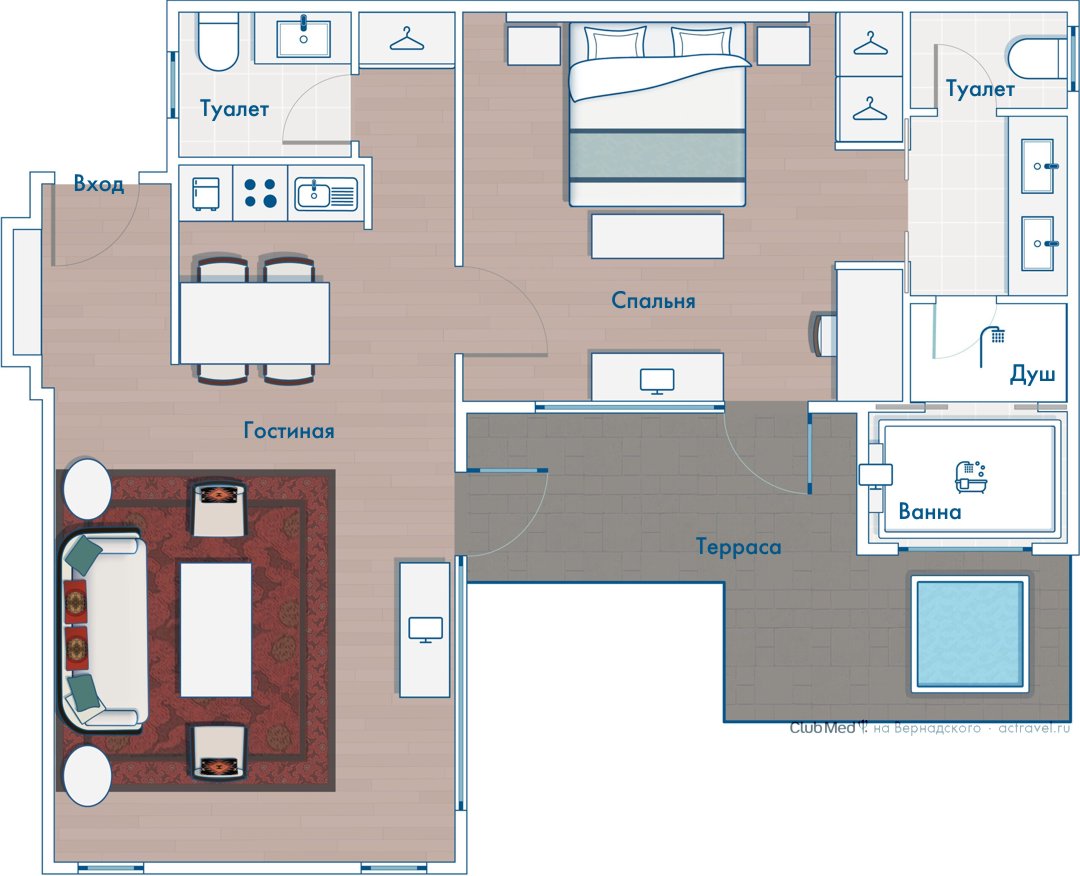
Номер Deluxe с балконом
для людей с ограниченными возможностями

A3+

План номера Делюкс в Club Med Changbaishan

Номер Делюкс в Club Med Changbaishan

Номер Делюкс в Club Med Changbaishan

Приятный и удобный номер с балконом и ванной комнатой с душем, адаптированной для людей с ограниченными возможностями. Этнические узоры, вдохновленные маньчжурской культурой, светлые тона и дерево создают уютную атмосферу.

Площадь номера: 39 м2

Количество гостей: до 2 чел.

Номера Сьют

Номер категории Suite

S3

План номера Сьют в Club Med Changbaishan

Номер Сьют в Club Med Changbaishan

Номер Сьют в Club Med Changbaishan

Номер Сьют в Club Med Changbaishan

Просторный номер, состоящий из гостиной, спальни с 2 кроватями king-size и ванной комнаты, выделяется своей элегантностью и повышенным комфортом. Украшающая комнату картина с изображением типичного маньчжурского костюма отдает дань уважения местной культуре.

Площадь номера: 78—82 м2

Количество гостей: до 3 чел.

Номер Suite
с балконом

S3+

План номера Сьют в Club Med Changbaishan

Номер Сьют в Club Med Changbaishan

Номер Сьют в Club Med Changbaishan

Просторный номер состоит из двух отдельных комнат. В гостиной и на балконе достаточно места для совместного семейного отдыха. В оформлении преобладают маньчжурские узоры и украшения, которые придают номеру элегантность.

Площадь номера: 74—103 м2

Количество гостей: до 3 чел.

Семейный номер Family Suite

S4

План номера Сьют в Club Med Changbaishan

Номер Сьют в Club Med Changbaishan

Номер Сьют в Club Med Changbaishan

Просторный и комфортный семейный номер с деревянной мебелью и декоративными маньчжурскими элементами. В номере есть выход на террасу, где можно насладиться свежим горным воздухом всей семьей.

Площадь номера: 66—76 м2

Количество гостей: до 4 чел.

Семейный номер Family Master Suite

S6

План номера Сьют в Club Med Changbaishan

Номер Сьют в Club Med Changbaishan

Комфортный и современный семейный номер с деревянной мебелью и декоративными маньчжурскими элементами состоит из гостиной и двух отдельных спален. В номере есть выход на террасу, где можно насладиться свежим горным воздухом всей семьей.

Площадь номера: 115 м2

Количество гостей: до 6 чел.

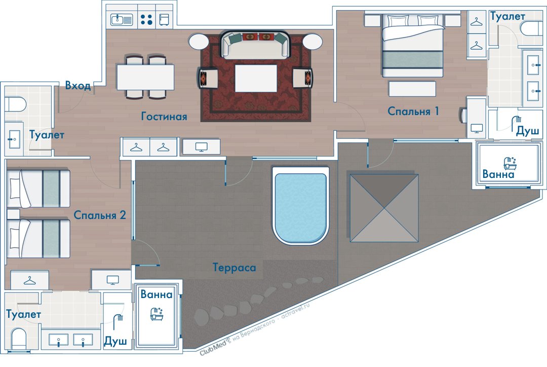
Объединенные номера Suite с балконом и Deluxe Family

S3+A4

Номере идеально подходит для больших семей, в нем могут разместиться 7 человек. Для удобства гостей есть и ванна, и душ. Гостиная и балкон подойдут для того, чтобы вся семь могла собраться и провести время вместе. Светлое дерево и бежевая мебель создают изысканную и уютную обстановку. Картина с изображением типичного маньчжурского костюма отдает дань уважения местной культуре.

Площадь номера: 113—116 м2

Количество гостей: до 7 чел.

Вернуться к описанию курорта
Наталья Нере́тина Наталья Нере́тина
◆ директор отдела продаж
 +7 929 910-90-60

Иван Щенников Иван Щенников
◆ менеджер по туризму
 +7 926 384-99-44