+7 495 740-29-89
пн-пт: 10:00—19:00
сб: 11:00—14:00
Туроператор
АС-тревел
Club Med на Вернадского

Типы номеров
в Club Med Cherating Beach

Вернуться к описанию курорта

Всего в курортном городке Club Med Cherating Beach 297 номеров, распределенных в 15 трехэтажных бунгало на сваях, вход в них — по специальным лестницам, все в домах изготовлено из изысканного тикового дерева.

Внешний вид бунгало в Club Med Cherating Beach

Гости могут выбрать номера двух основных категорий: Супериор и Сьют.

Номера Супериор

Номер категории Superior

C2

План номера Супериор в Club Med Cherating

Номер Супериор в Club Med Cherating Beach

Номер Супериор в Club Med Cherating Beach

Всего 109 номеров на всех трех этажах бунгало. Вид на сады. Оформление номеров в тропическом островном стиле, с учеетом культуры коренных народов Малайского архипелага.

В номере: кондиционер, телефон, телевизор, интернет, сейф, все для чая/кофе, холодильник, душ, фен, тапочки.

Площадь номера: 21 м2
Количество гостей: 1—3 чел.

Номер категории Superior
со стороны моря

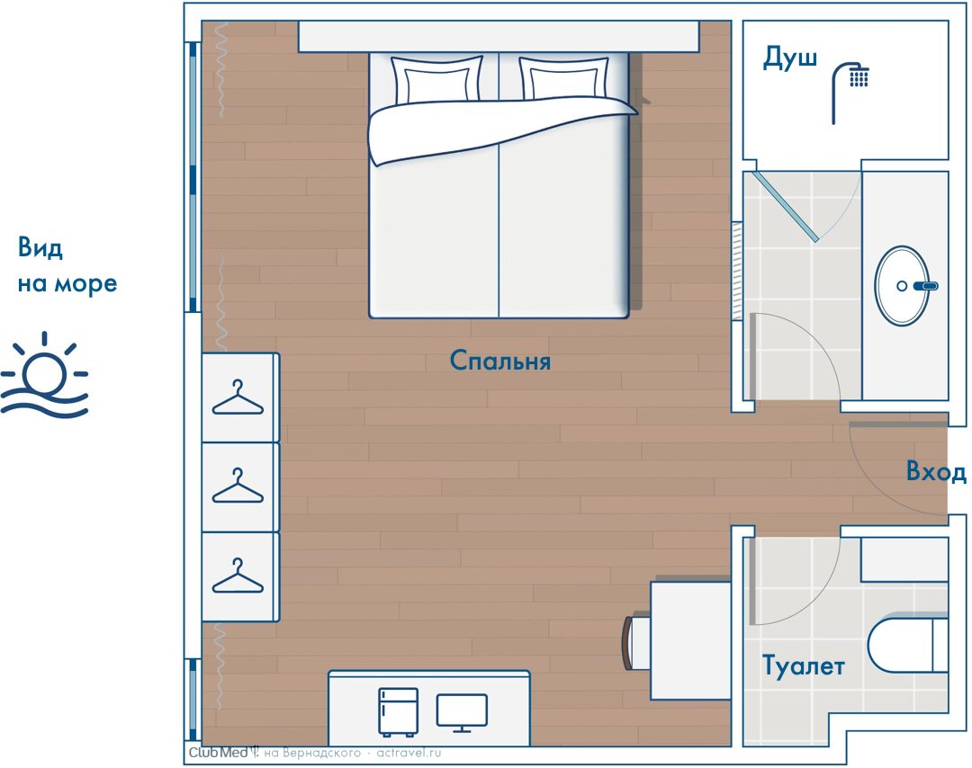
A2

План номера Супериор в Club Med Cherating

Номер Супериор в Club Med Cherating Beach

Всего 69 номеров на 1 и 2 этажах бунгало недалеко от ресепшн. Обращены в сторону моря.

В номере: кондиционер, телефон, телевизор, интернет, сейф, все для чая/кофе, холодильник, душ, фен, тапочки.

Площадь номера: 21 м2
Количество гостей: 1—3 чел.

Объединенные номера 2 × Superior

C2+C2

Номер Супериор в Club Med Cherating Beach

Всего 35 номеров на всех трех этажах. Вид на тропические сады. Номер состоит из двух, каждый со своим входом и душевой.

В номере: кондиционер, телефон, телевизор, интернет, сейф, все для чая/кофе, холодильник, душ, фен, тапочки.

Площадь номера: 42 м2
Количество гостей: 4—5 чел.

Объединенные номера 2 × Superior
со стороны моря

A2+A2

Номер Супериор в Club Med Cherating Beach

Всего 21 номер на вторых и третьих этажах в бунгало недалеко от ресепшн. Номер состоит из двух, каждый со своим входом и душевой.

В номере: кондиционер, телефон, телевизор, интернет, сейф, все для чая/кофе, холодильник, душ, фен, тапочки.

Площадь номера: 42 м2
Количество гостей: 3—4 чел.

Номер Superior
для людей с ограниченными возможностями

H2

План номера Супериор в Club Med Cherating

Номер Супериор в Club Med Cherating Beach

Единственный номер на нижнем этаже. В номере созданы все условия для гостей с ограниченной мобильностью.

В номере: кондиционер, телефон, телевизор, интернет, сейф, все для чая/кофе, холодильник, душ, фен, тапочки.

Площадь номера: 21 м2
Количество гостей: 1—2 чел.

Номера Сьют

Номер категории Suite
со стороны моря, с террасой

S2

План номера Сьют в Club Med Cherating

Номер Сьют в Club Med Cherating Beach

Номер Сьют в Club Med Cherating Beach

Номер Сьют в Club Med Cherating Beach

Всего 4 номера на нижнем этаже бунгало. Панорамный вид на Южно-Китайское море. Спальня, гостиная и меблированная терраса.

В номере: кондиционер, телефон, телевизор, интернет, софа, сейф, все для чая/кофе, холодильник, мини-бар (пополняется ежедневно), ванна, душ, фен, халаты и тапочки.

Площадь номера: 55 м2
Количество гостей: 1—3 чел.

Объединенные номера Suite + Superior
со стороны моря

S2+A2

Номер-коннект в Club Med Cherating Beach

Всего 2 номера, каждый состоит из Сьюта (спальня и гостиная) и Супериора (спальня) с отдельными входами и санузлами.

Площадь номера: 76 м2
Количество гостей: 4—5 чел.

Вернуться к описанию курорта
Наталья Нере́тина Наталья Нере́тина
◆ директор отдела продаж
 +7 929 910-90-60

Иван Щенников Иван Щенников
◆ менеджер по туризму
 +7 926 384-99-44