+7 495 740-29-89
пн-пт: 10:00—19:00
сб: 11:00—14:00
Туроператор
АС-тревел
Club Med на Вернадского

Типы номеров
в Club Med Da Balaia

Вернуться к описанию курорта

Гости Club Med Da Balaia могут выбрать размещение в любом из 389 номеров в трех корпусах, соединенных застекленными аллеями. Насладитесь видом на воду из корпусов Belem (4 этажа) и Coimbra (8 этажей). Если вы выбираете здание Lisboa (6 этажей), то вы сможете сидеть на балконе и дышать свежим атлантическим воздухом. Номера трех основных типов: Супериор, Делюкс и Сьют.

Во всех зданиях есть лифты.

Номера Супериор

Одноместный номер Superior Single
в корпусе Belem

C1

План номера Супериор в Club Med Da Balaia

Номер Супериор в Club Med Da Balaia

Номер Супериор в Club Med Da Balaia

Всего 6 номеров. Расположены на первом этаже корпуса Belem, с видом на сосновый лес, сад или поле для мини-гольфа. Меблированная терраса (17 м2).

В номере: кондиционер, телевизор, телефон, интернет, сейф, мини-бар (без наполнения), утюг и гладильная доска, душ, фен.

Площадь номера: 20 м2
Количество гостей: 1 чел.

Номер Superior
в корпусах Coimbra и Belem

C2

План номера Супериор в Club Med Da Balaia

Номер Супериор в Club Med Da Balaia

Всего 248 номеров с меблированным балконом на всех этажах.

В номере: кондиционер, телевизор, телефон, интернет, сейф, мини-бар (без наполнения), утюг и гладильная доска, душ, фен.

Площадь номера: 24—27 м2
Количество гостей: 1—4 чел.

Номер Superior
в корпусе Lisboa

C2+

План номера Супериор в Club Med Da Balaia

Номер Супериор в Club Med Da Balaia

Всего 75 номеров. Путешествуете ли вы вдвоем или семьей, номер подойдет как для одних, так и для других. Для детей предусмотрено отдельное пространство.

В номере: кондиционер, телевизор, телефон, интернет, сейф, мини-бар (без наполнения), утюг и гладильная доска, душ, фен.

Площадь номера: 20—50 м2
Количество гостей: 1—4 чел.

Номер Superior
с видом на море в корпусах Coimbra и Belem

B2

План номера Супериор в Club Med Da Balaia

План номера Супериор в Club Med Da Balaia

Номер Супериор в Club Med Da Balaia

Всего 21 номер с меблированным балконом и прямым видом на океан.

В номере: кондиционер, телевизор, телефон, интернет, сейф, мини-бар (без наполнения), утюг и гладильная доска, душ, фен.

Площадь номера: 24—27 м2
Количество гостей: 1—4 чел.

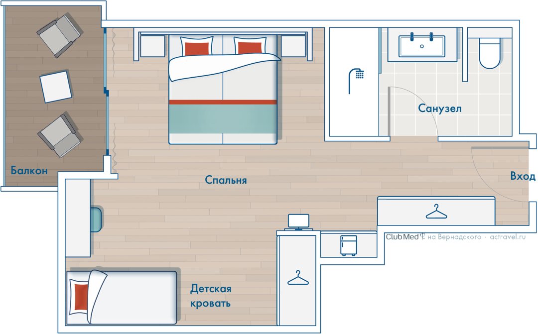
Семейный номер Junior Family Superior
в корпусе Lisboa

C3+

План номера Супериор в Club Med Da Balaia

Номер Супериор в Club Med Da Balaia

Номер Супериор в Club Med Da Balaia

Номер Супериор в Club Med Da Balaia

Отдыхая всей семьей, вы будете наслаждаться своей комнатой и ее пикантными цветами. Идеально подходит для семей из 3 человек, с 2 отдельными спальными зонами. Принт в полоску на шезлонге с изюминкой, картины на стенах и мебель с ее изящными линиями — все это вместе создает успокаивающую атмосферу.

В номере: кондиционер, телевизор, телефон, интернет, сейф, всё для чая/кофе, мини-бар (без наполнения), фен.

Площадь номера: 31—45 м2
Количество гостей: до 3 чел.

Семейный номер Family Superior
в корпусе Lisboa

C4+

План номера Супериор в Club Med Da Balaia

Номер Супериор в Club Med Da Balaia

Отдыхая всей семьей, вы будете наслаждаться своим номером с 2 отдельными зонами и его пикантными цветами. Принт в полоску на шезлонге с изюминкой, картины на стенах и мебель с плавными линиями — всё это вместе создает успокаивающую атмосферу.

В номере: кондиционер, телевизор, телефон, интернет, сейф, всё для чая/кофе, мини-бар (без наполнения), фен.

Площадь номера: 31—45 м2
Количество гостей: до 4 чел.

Объединенные номера 2 × Superior
в корпусе Coimbra

C2+C2

Номер Супериор в Club Med Da Balaia

Всего 60 номеров на всех этажах для семей, ценящих пространство и комфорт.

В номере: кондиционер, телевизор, телефон, интернет, сейф, мини-бар (без наполнения), утюг и гладильная доска, душ, фен.

Площадь номера: 48 м2
Количество гостей: 3—5 чел.

Объединенные номера 2 × Superior
в корпусе Lisboa

C2+C2+

Номер Супериор в Club Med Da Balaia

Номера для семей, ценящих пространство и комфорт.

В номере: кондиционер, телевизор, телефон, интернет, сейф, мини-бар (без наполнения), утюг и гладильная доска, душ, фен.

Площадь номера: 44—75 м2
Количество гостей: 3—5 чел.

Объединенные номера 2 × Superior
с видом на море в корпусе Coimbra

B2+B2

Номер Супериор в Club Med Da Balaia

Всего 8 номеров со 2 по 6 этаж.

В номере: кондиционер, телевизор, телефон, интернет, сейф, мини-бар (без наполнения), утюг и гладильная доска, душ, фен.

Площадь номера: 48 м2
Количество гостей: 3—4 чел.

Номер категории Superior
для гостей с ограниченными возможностями в корпусе Belem

H2

План номера Супериор в Club Med Da Balaia

Номер Супериор в Club Med Da Balaia

Номер Супериор в Club Med Da Balaia

Всего 2 номера на нижнем этаже с меблированной террасой.

В номере: кондиционер, телевизор, телефон, интернет, сейф, мини-бар (без наполнения), утюг и гладильная доска, душ, фен.

Площадь номера: 20 м2
Количество гостей: 1—2 чел.

Номера Делюкс

Номер категории Deluxe
в корпусе Lisboa

A2

План номера Делюкс в Club Med Da Balaia

Номер Делюкс в Club Med Da Balaia

Номер Делюкс в Club Med Da Balaia

Номер на шестом этаже. Высокие панорамные окна, гостиная зона и меблированный балкон.

В номере: кондиционер, телевизор, телефон, интернет, софа, сейф, мини-бар (без наполнения), все для чая/кофе, утюг и гладильная доска, ванна, душ, фен, халаты и тапочки.

Площадь номера: 39—45 м2
Количество гостей: 1—2 чел.

Объединенные номера Superior + Deluxe
в корпусе Lisboa

A2+C2+

Номер Делюкс в Club Med Da Balaia

Номер Делюкс в Club Med Da Balaia

Всего 6 номеров с 3 по 5 этаж. Меблированный балкон, вид через сады на гольф-поле.

Площадь номера: 77 м2
Количество гостей: 3—5 чел.

Номера Сьют

Номер категории Suite
с видом на море в корпусах Coimbra и Belem

План номера Сьют в Club Med Da Balaia S2

Номер Сьют в Club Med Da Balaia

Номер Сьют в Club Med Da Balaia

Номер Сьют в Club Med Da Balaia

Номер Сьют в Club Med Da Balaia

Номер с панорамным видом на океан и двумя меблированными балконами. Состоит из спальни, гостиной и гардеробной.

В номере: кондиционер, телевизор, телефон, интернет, софа, шезлонги на одном из балконов, сейф, мини-бар (пополняется ежедневно), все для чая/кофе, утюг и гладильная доска, ванна, душ, фен, халаты и тапочки.

Площадь номера: 42—49 м2
Количество гостей: 1—3 чел.

Номер категории Suite
в корпусе Lisboa

S2J

План номера Сьют в Club Med Da Balaia

Номер Сьют в Club Med Da Balaia

Номер Сьют в Club Med Da Balaia

Всего 2 просторных номера, оформленных в стиле 1960-х.

В номере: кондиционер, телевизор, телефон, интернет, софа, шезлонги, сейф, мини-бар (пополняется ежедневно), все для чая/кофе, утюг и гладильная доска, ванна, душ, фен, халаты и тапочки.

Площадь номера: 59—63 м2
Количество гостей: 1—2 чел.

Номер категории Suite
с террасой в корпусе Lisboa

S2T

План номера Сьют в Club Med Da Balaia

Номер Сьют в Club Med Da Balaia

Номер Сьют в Club Med Da Balaia

Номер Сьют в Club Med Da Balaia

Всего 5 номеров с 3 по 6 этаж корпуса Fado Lisboa. Номер состоит из просторного холла, спальни и гостиной, разделенных дверью.

В номере: кондиционер, телевизор, телефон, интернет, софа, шезлонги, сейф, мини-бар (пополняется ежедневно), все для чая/кофе, утюг и гладильная доска, ванна, душ, фен, халаты и тапочки.

Площадь номера: 58—61 м2
Количество гостей: 1—2 чел.

Вернуться к описанию курорта
Наталья Нере́тина Наталья Нере́тина
◆ директор отдела продаж
 +7 929 910-90-60

Иван Щенников Иван Щенников
◆ менеджер по туризму
 +7 926 384-99-44