+7 495 740-29-89
пн-пт: 10:00—19:00
сб: 11:00—14:00
Туроператор
АС-тревел
Club Med на Вернадского

Типы номеров
в Club Med Tignes

Вернуться к описанию курорта

Гости Club Med Tignes могут выбрать номера трех основных категорий: Супериор, Делюкс и Сьют. На курорте есть приватная зона Exclusive Collection с уровнем комфорта «5 трезубцев» (25 сьютов).

Внимание

Предлагаемые ниже планировки номеров носят информационный характер. Планировка может меняться в зависимости от наличия номеров такого же типа.

Номера Супериор

Номер категории Superior

C2

План номера Супериор в Club Med Tignes

Номер Супериор в Club Med Tignes

Ванная комната в номере Супериор в Club Med Tignes

Геометрические узоры, натуральное дерево и приглушенные цвета делают номер уютным и современным.

В номере: телефон, телевизор, сейф, все для чая/кофе, ванна, двойные раковины, фен.

Площадь номера: 24 м2
Количество гостей: до 3 чел.

Номер категории Superior
с балконом

B2

План номера Супериор в Club Med Tignes

Номер Супериор в Club Med Tignes

Балкон с видом на долину. Геометрические узоры, натуральное дерево и приглушенные цвета делают номер уютным и современным.

В номере: балкон, телефон, телевизор, сейф, все для чая/кофе, ванна, двойные раковины, фен.

Площадь номера: 24 м2
Количество гостей: до 3 чел.

Семейный номер Family Superior
с балконом

B3

План номера Супериор в Club Med Tignes

Номер Супериор в Club Med Tignes

Этот номер с двумя спальными местами, разделенными общей ванной комнатой, хорошо подходит для семей. Множество вариантов хранения и приятный декор.

В номере: балкон, телефон, телевизор, сейф, все для чая/кофе, ванна, двойные раковины, фен.

Площадь номера: 34 м2
Количество гостей: до 4 чел.

Смежные номера 2 × Superior

C2+C2

План номера Супериор в Club Med Tignes

Номер Супериор в Club Med Tignes

Такая планировка идеально подходит для семей, сочетая в себе большое пространство и комфорт. Узоры и цвета создают ощущение современности, а дерево дополняет декор.

В номере: балкон, телефон, телевизор, сейф, все для чая/кофе, ванна, двойные раковины, фен.

Площадь номера: 48—53 м2
Количество гостей: до 5 чел.

Смежные номера Superior и Superior
с балконом

C2+B2

План номера Супериор в Club Med Tignes

Номер понравится семьям с детьми. Идеальная планировка с балконом, натуральные материалы и спокойные оттенки.

В номере: балкон, телефон, телевизор, сейф, все для чая/кофе, ванна, двойные раковины, фен.

Площадь номера: 48 м2
Количество гостей: до 5 чел.

Смежные номера 2 × Superior
с балконом

B2+B2

План номера Супериор в Club Med Tignes

Гармоничное сочетание красочных узоров и натурального дерева. Балконы позволят гостям наслаждаться открытым пространством.

В номере: балкон, телефон, телевизор, сейф, все для чая/кофе, ванна, двойные раковины, фен.

Площадь номера: 48—53 м2
Количество гостей: до 5 чел.

Номер категории Superior
для людей с ограниченными возможностями

H2

План номера Супериор в Club Med Tignes

Номер Супериор для инвалидов в Club Med Tignes

Номер Супериор для инвалидов в Club Med Tignes

В номере предусмотрено все для комфортного проживания гостей с ограниченными возможностями.

В номере: балкон, телефон, телевизор, сейф, все для чая/кофе, ванна, двойные раковины, фен.

Площадь номера: 24—29 м2
Количество гостей: до 3 чел.

Номер категории Superior с балконом
для людей с ограниченными возможностями

H2B

План номера Супериор в Club Med Tignes

В номере предусмотрено все для комфортного проживания гостей с ограниченными возможностями. Панорамные окна и балкон.

В номере: балкон, телефон, телевизор, сейф, все для чая/кофе, ванна, двойные раковины, фен.

Площадь номера: 24—34 м2
Количество гостей: до 4 чел.

Номера Делюкс

Номер категории Deluxe

A2

План номера Делюкс в Club Med Tignes

Номер Делюкс в Club Med Tignes

Номер Делюкс в Club Med Tignes

Натуральное дерево, нейтральные оттенки — современно и уютно. Просторный номер с панорамными окнами и балконом обязательно понравится гостям.

В номере: балкон, телефон, телевизор, сейф, мини-бар (без наполнения), все для чая/кофе, утюг и гладильная доска, ванна, двойные раковины, фен, халаты и тапочки.

Площадь номера: 29 м2
Количество гостей: до 2 чел.

Семейный номер Deluxe Family

A4

План номера Делюкс в Club Med Tignes

Номер Делюкс в Club Med Tignes

Номер Делюкс в Club Med Tignes

Номер состоит из двух раздельных спальных мест и подходит для семей, где у родителей есть своя зона отдыха.

В номере: балкон, телефон, телевизор, сейф, мини-бар (без наполнения), все для чая/кофе, утюг и гладильная доска, ванна, двойные раковины, фен, халаты и тапочки.

Площадь номера: 34 м2
Количество гостей: до 4 чел.

Смежные номера Deluxe + Superior

C2+A2

План номера Делюкс в Club Med Tignes

Номер идеально подходит для семей с детьми. У родителей большая уютная спальня с зоной отдыха, большими креслами и балконом. У детей — яркая спальня с большим количеством мест для хранения.

В номере: балкон, телефон, телевизор, сейф, мини-бар (без наполнения), все для чая/кофе, утюг и гладильная доска, ванна, двойные раковины, фен, халаты и тапочки.

Площадь номера: 53—58 м2
Количество гостей: до 5 чел.

Смежные номера Deluxe + Superior
с балконом

B2+A2

План номера Делюкс в Club Med Tignes

Для детей — яркая спальня с большим количеством мест хранения. У родителей собственная спальня с большой зоной отдыха, где можно расслабиться. Обе комнаты имеют балконы.

В номере: балкон, телефон, телевизор, сейф, мини-бар (без наполнения), все для чая/кофе, утюг и гладильная доска, ванна, двойные раковины, фен, халаты и тапочки.

Площадь номера: 53 м2
Количество гостей: до 5 чел.

Смежные номера 2 × Deluxe

A2+A2

План номера Делюкс в Club Med Tignes

Номер подойдет семьям. Балконы, зона отдыха, большие кресла... здесь все создано для отдыха и удовольствия от совместного времяпрепровождения.

В номере: балкон, телефон, телевизор, сейф, мини-бар (без наполнения), все для чая/кофе, утюг и гладильная доска, ванна, двойные раковины, фен, халаты и тапочки.

Площадь номера: 58 м2
Количество гостей: до 4 чел.

Номер категории Deluxe
для людей с ограниченными возможностями

H2A

План номера Делюкс в Club Med Tignes

Номер Делюкс в Club Med Tignes

В номере предусмотрено все для комфортного проживания гостей с ограниченными возможностями. Панорамные окна и балкон.

В номере: балкон, телефон, телевизор, сейф, мини-бар (без наполнения), все для чая/кофе, утюг и гладильная доска, ванна, двойные раковины, фен, халаты и тапочки.

Площадь номера: 29 м2
Количество гостей: до 2 чел.

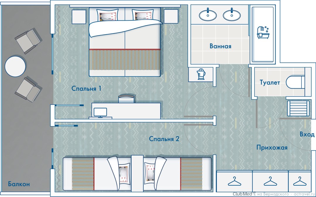
Эксклюзивная коллекция Club Med Номера Сьют

Номер категории Suite

S2

План номера Сьют в Club Med Tignes

Номер Сьют в Club Med Tignes

Номер Сьют в Club Med Tignes

Номер Сьют в Club Med Tignes

2 спальни, 2 ванные комнаты, гостиная, балкон — это пространство идеально подойдет семьям с несколькими детьми, где каждый сможет насладиться моментами полного уединения.

В номере: балкон, гостиная, софа, телефон, телевизор, bluetooth-колонки, сейф, все для чая/кофе, эспрессо-машина, утюг и гладильная доска, ванна, душ, двойные раковины, фен, халаты и тапочки.

Площадь номера: 70 м2
Количество гостей: до 4 чел.

Номер категории Suite
с видом

S2+

План номера Сьют в Club Med Tignes

Номер Сьют в Club Med Tignes

Номер Сьют в Club Med Tignes

Номер Сьют в Club Med Tignes

Номер Сьют в Club Med Tignes

2 спальни, 2 ванные комнаты, гостиная, балкон — это пространство идеально подойдет семьям с несколькими детьми, где каждый сможет насладиться моментами полного уединения.

В номере: балкон, гостиная, софа, телефон, телевизор, bluetooth-колонки, сейф, все для чая/кофе, эспрессо-машина, утюг и гладильная доска, ванна, душ, двойные раковины, фен, халаты и тапочки.

Площадь номера: 70 м2
Количество гостей: до 4 чел.

Номер категории Suite с видом,
для маломобильных гостей

H2S+

План номера Сьют в Club Med Tignes

Номер Сьют в Club Med Tignes

Просторный номер с двумя спальнями и двумя ванными комнатами идеально подходит для маломобильных гостей и их семей. Гостиная и балкон с видом на курорт делают его еще уютнее.

В номере: балкон, гостиная, софа, телефон, телевизор, bluetooth-колонки, сейф, все для чая/кофе, эспрессо-машина, утюг и гладильная доска, ванна, душ, двойные раковины, фен, халаты и тапочки.

Площадь номера: 70 м2
Количество гостей: до 4 чел.

Вернуться к описанию курорта
Наталья Нере́тина Наталья Нере́тина
◆ директор отдела продаж
 +7 929 910-90-60

Иван Щенников Иван Щенников
◆ менеджер по туризму
 +7 926 384-99-44