+7 495 740-29-89
пн-пт: 10:00—19:00
сб: 11:00—14:00
Туроператор
АС-тревел
Club Med на Вернадского

Типы номеров
в Club Med Trancoso

Вернуться к описанию курорта

Всего в Club Med Trancoso 250 номеров в 8 небольших ярко окрашенных двухэтажных зданиях, разделенных на два квартала. Центральный квартал составляют бунгало Ondas и Conchas. Бунгало в саду: Areias, Estrelas, Golfinhos, Cabalos и Peixes.

Гости могут выбрать номера из двух основных категорий: Супериор и Делюкс.

Внимание

Предлагаемые ниже планировки номеров носят информационный характер. Планировка может меняться в зависимости от наличия номеров такого же типа.

Номера Супериор

Номер категории Superior

 

План номера Супериор в Club Med Trancoso

Номер Супериор в Club Med Trancoso

Номер Супериор в Club Med Trancoso

Номер Супериор в Club Med Trancoso

Любите спорт? Футбольное поле и теннисные корты, в двух шагах. Номера на первом и втором этажах бунгало в саду. Всего 110 номеров.

В номере: телефон, телевизор, интернет, софа, сейф, мини-бар (без наполнения), душ, фен.

Площадь номера: 34 м2

Количество гостей: 1—3 чел.

Номер Center District Superior
в центре курорта

 

План номера Супериор в Club Med Trancoso

Номер Супериор в Club Med Trancoso

Номер Супериор в Club Med Trancoso

Номера в бунгало в центре курорта на первых и вторых этажах. Всего 22 номера.

В номере: телефон, телевизор, интернет, софа, сейф, мини-бар (без наполнения), душ, фен.

Площадь номера: 34 м2

Количество гостей: 1—3 чел.

Семейный номер Family Superior

 

План номера Супериор в Club Med Trancoso

Номер Супериор в Club Med Trancoso

Номер Супериор в Club Med Trancoso

Номер Супериор в Club Med Trancoso

Номера на первых и вторых этажах бунгало с видом на сад. Отдельные спальни для взрослых и детей. Всего 32 номера.

В номере: телефон, телевизор, интернет, софа, сейф, мини-бар (без наполнения), душ, фен.

Площадь номера: 42 м2

Количество гостей: 1—4 чел.

Семейный номер Family Center District Superior
в центре курорта

 

План номера Супериор в Club Med Trancoso

Номер Супериор в Club Med Trancoso

Номер Супериор в Club Med Trancoso

Номера в бунгало в центре курорта на первых и вторых этажах. Вид на сад. Отдельные спальни для взрослых и детей. Всего 8 номеров.

В номере: телефон, телевизор, интернет, софа, сейф, мини-бар (без наполнения), душ, фен.

Площадь номера: 42 м2

Количество гостей: 1—4 чел.

Новый семейный номер New Family Superior

 

План номера Супериор в Club Med Trancoso

Номер Супериор в Club Med Trancoso

Номер Супериор в Club Med Trancoso

Номер Супериор в Club Med Trancoso

Номер Супериор в Club Med Trancoso

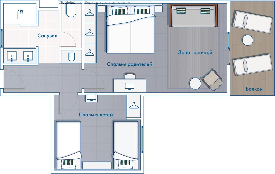
Идеальный выбор для семей, ценящих простор. Отдельные спальни для взрослых и детей.

В номере: телефон, телевизор, интернет, софа, сейф, утюг и гладильная доска, мини-бар (без наполнения), душ, фен.

Площадь номера: 61 м2

Количество гостей: 1—4 чел.

Объединенные номера 2 × Superior

 

План номера Супериор в Club Med Trancoso

Два самостоятельных номера с отдельными входами и своими санузлами. Всего 8 номеров.

В номере: телефон, телевизор, интернет, софа, сейф, мини-бар (без наполнения), душ, фен.

Площадь номера: 68 м2

Количество гостей: 4—6 чел.

Объединенные номера 2 × Center District Superior
в центре курорта

 

План номера Супериор в Club Med Trancoso

Единственный номер.

В номере: телефон, телевизор, интернет, софа, сейф, мини-бар (без наполнения), душ, фен.

Площадь номера: 68 м2

Количество гостей: 4—6 чел.

Номер Superior
для людей с ограниченными возможностями

 

План номера Супериор в Club Med Trancoso

Номер Супериор в Club Med Trancoso

Номер на нижнем этаже учитывает потребности гостей с ограниченной подвижностью.

В номере: телефон, телевизор, интернет, софа, сейф, мини-бар (без наполнения), душ, фен.

Площадь номера: 34 м2

Количество гостей: 1—3 чел.

Номера Делюкс

Номер категории Deluxe Brisa

 

План номера Делюкс в Club Med Trancoso

Номер Делюкс в Club Med Trancoso

Номер Делюкс в Club Med Trancoso

Номер идеально подходит для пар, которые предпочитают отдых в расслабляющий атмосфере. Наслаждайтесь теплом и уютом данного номера, дизайн которого дополнен деревянной мебелью.

В номере: телефон, телевизор, интернет, софа, сейф, мини-бар (безалкогольные напитки, ежедневное пополнение), ванна, душ, фен, халаты.

Площадь номера: 44 м2

Количество гостей: до 2 чел.

Номер категории Deluxe
в центре курорта

 

План номера Делюкс в Club Med Trancoso

Номер Делюкс в Club Med Trancoso

Номер Делюкс в Club Med Trancoso

Номер идеально подходит для пар, которые предпочитают отдых в расслабляющий атмосфере. Наслаждайтесь теплом и уютом данного номера, дизайн которого дополнен деревянной мебелью.

В номере: телефон, телевизор, интернет, софа, сейф, мини-бар (безалкогольные напитки, ежедневное пополнение), ванна, душ, фен, халаты.

Площадь номера: 44 м2

Количество гостей: до 2 чел.

Семейный номер Deluxe Family
в центре курорта

 

План номера Делюкс в Club Med Trancoso

Номер Делюкс в Club Med Trancoso

Номер Делюкс в Club Med Trancoso

Номер Делюкс в Club Med Trancoso

Номера в бунгало в центре курорта на первых и вторых этажах. Всего 10 номеров.

В номере: телефон, телевизор, интернет, софа, сейф, мини-бар (пополняется по запросу), душ, фен, халаты.

Площадь номера: 42 м2

Количество гостей: до 4 чел.

Объединенные номера 2 × Deluxe

 

План номера Делюкс в Club Med Trancoso

Всего 4 номера

В номере: телефон, телевизор, интернет, софа, сейф, мини-бар (пополняется по запросу), душ, фен, халаты.

Площадь номера: 68 м2

Количество гостей: 4—6 чел.

Вернуться к описанию курорта
Наталья Нере́тина Наталья Нере́тина
◆ директор отдела продаж
 +7 929 910-90-60

Иван Щенников Иван Щенников
◆ менеджер по туризму
 +7 926 384-99-44