+7 495 740-29-89
пн-пт: 10:00—19:00
сб: 11:00—14:00
Туроператор
АС-тревел
Club Med на Вернадского

Типы номеров
в Club Med Val d'Isère

Вернуться к описанию курорта

Гости Club Med Val d'Isère могут выбрать номера двух основных категорий: Делюкс и Сьют.

Внешний вид здания Club Med Val d'Isère

Внимание

Предлагаемые ниже планировки номеров носят информационный характер. Планировка может меняться в зависимости от наличия номеров такого же типа.

Номера Делюкс

Номер категории Deluxe
с балконом

План номера Делюкс в Club Med Val d'Isère

Номер Делюкс в Club Med Val d'Isère

Номер Делюкс в Club Med Val d'Isère

Натуральное светлое дерево и нейтральные оттенки интерьера — это пространство наполнено теплом и уютом. В номере также есть ванная комната, большое количество мест хранения, балкон.

В номере: телефон, телевизор, софа, интернет, сейф, все для чая/кофе, эспрессо-машина, ванна, душ, фен, утюг и гладильная доска, халаты и тапочки.

Площадь номера: 24—25 м2
Количество гостей: до 2 чел.

Семейный номер Family Junior Deluxe

План номера Делюкс в Club Med Val d'Isère

Номер Делюкс в Club Med Val d'Isère

Номер Делюкс в Club Med Val d'Isère

Номер Делюкс в Club Med Val d'Isère

Натуральное дерево, мягкое освещение и теплые тона придают спальне номера уютную атмосферу. В номере также есть ванная комната, большое количество мест хранения, балкон. Номер идеально подойдет для семьи с 1 ребенком. Гостиная может быть преобразована в детскую спальню.

В номере: телефон, телевизор, интернет, сейф, все для чая/кофе, эспрессо-машина, ванна, душ, фен, утюг и гладильная доска, халаты и тапочки.

Площадь номера: 28—37 м2
Количество гостей: до 3 чел.

Семейный номер Family Junior Deluxe
с балконом

План номера Делюкс в Club Med Val d'Isère

Номер Делюкс в Club Med Val d'Isère

Номер Делюкс в Club Med Val d'Isère

Натуральное дерево и оттенки в интерьере. Номер подойдет для тех, кто предпочитает комфорт: гостиная, балкон, просторная спальня и ванная комната.

В номере: телефон, телевизор, интернет, сейф, все для чая/кофе, эспрессо-машина, ванна, душ, фен, утюг и гладильная доска, халаты и тапочки.

Площадь номера: 28—37 м2
Количество гостей: до 3 чел.

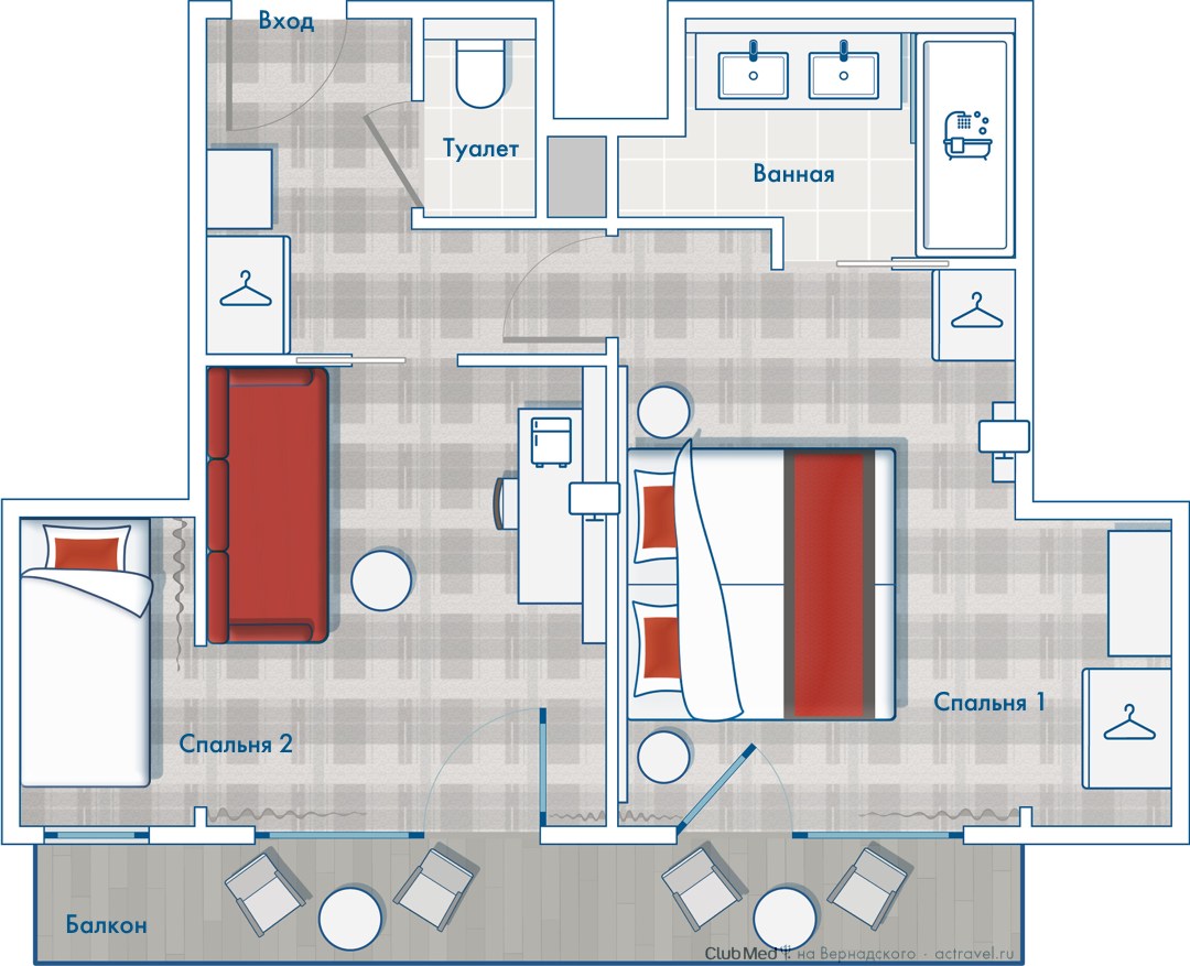
Семейный номер Family Deluxe
с балконом

План номера Делюкс в Club Med Val d'Isère

Номер Делюкс в Club Med Val d'Isère

Номер Делюкс в Club Med Val d'Isère

Этот номер идеально подходит для семей, предпочитающих простор и комфорт. Состоит из двух спален, разделенных большой ванной комнатой.

В номере: телефон, телевизор, интернет, сейф, все для чая/кофе, эспрессо-машина, ванна, душ, фен, утюг и гладильная доска, халаты и тапочки.

Площадь номера: 37—41 м2
Количество гостей: до 4 чел.

Объединенные номера 2 × Deluxe
с балконом

План номера Делюкс в Club Med Val d'Isère

Планировка номера идеально подходит для семей с детьми. Балконы и большие ванные комнаты.

В номере: телефон, телевизор, интернет, сейф, все для чая/кофе, эспрессо-машина, ванна, душ, фен, утюг и гладильная доска, халаты и тапочки.

Площадь номера: 48—50 м2
Количество гостей: до 4 чел.

Семейный номер Family Junior Deluxe
для людей с ограниченными возможностями, с балконом

План номера Делюкс в Club Med Val d'Isère

Номер Делюкс в Club Med Val d'Isère

В номере предусмотрено все для комфортного проживания гостей с ограниченными возможностями.

В номере: телефон, телевизор, интернет, сейф, все для чая/кофе, эспрессо-машина, ванна, душ, фен, утюг и гладильная доска, халаты и тапочки.

Площадь номера: 35 м2
Количество гостей: до 3 чел.

Семейный номер Family Deluxe
для людей с ограниченными возможностями, с балконом

План номера Делюкс в Club Med Val d'Isère

Номер Делюкс в Club Med Val d'Isère

В номере предусмотрено все для комфортного проживания гостей с ограниченными возможностями.

В номере: телефон, телевизор, интернет, сейф, все для чая/кофе, эспрессо-машина, ванна, душ, фен, утюг и гладильная доска, халаты и тапочки.

Площадь номера: 45 м2
Количество гостей: до 4 чел.

Номера Сьют

Номер категории Suite

S2

План номера Сьют в Club Med Val d'Isère

Номер Сьют в Club Med Val d'Isère

Номер Сьют в Club Med Val d'Isère

Номер Сьют в Club Med Val d'Isère

Номер с гостиной, спальней, большой ванной комнатой и балконом. Гости пользуются особыми привилегиями.

В номере: телефон, телевизор, интернет, софа, сейф, утюг и гладильная доска, шкафчик для лыж с сушилкой для обуви, мини-бар (пополняется ежедневно), все для чая/кофе, ванна, душ, фен, халаты и тапочки.

Площадь номера: 49 м2
Количество гостей: 1—2 чел.

Семейный номер Family Junior Suite

План номера Сьют в Club Med Val d'Isère

Номер Сьют в Club Med Val d'Isère

Джуниор-сьют понравится семьям, которые предпочитают комфорт во всем. Раздельные спальные комнаты для родителей и детей – это возможность проводить время в спокойной и уединенной атмосфере. Гостиная может быть преобразована в спальню для ребенка до 8 лет.

В номере: телефон, телевизор, интернет, софа, сейф, утюг и гладильная доска, мини-бар (пополняется по запросу), все для чая/кофе, ванна, душ, фен, халаты и тапочки.

Площадь номера: 43—49 м2
Количество гостей: до 5 чел.

Семейный номер Family Suite

План номера Сьют в Club Med Val d'Isère

Номер Сьют в Club Med Val d'Isère

Номер Сьют в Club Med Val d'Isère

Номер Сьют в Club Med Val d'Isère

Номер Сьют в Club Med Val d'Isère

Номер с гостиной, спальнями для родителей и детей, большой ванной комнатой и балконом. Гости пользуются особыми привилегиями.

В номере: телефон, телевизор, интернет, софа, сейф, утюг и гладильная доска, шкафчик для лыж с сушилкой для обуви, мини-бар (пополняется ежедневно), все для чая/кофе, ванна, душ, фен, халаты и тапочки.

Площадь номера: 63 м2
Количество гостей: до 4 чел.

Номер Suite
для людей с ограниченными возможностями

S2H

План номера Сьют в Club Med Val d'Isère

Номер Сьют в Club Med Val d'Isère

Просторный номер с двумя спальнями и гостиной расположен на третьем этаже (есть лифт). В номере предусмотрены удобства для гостей с ограниченной подвижностью.

В номере: телефон, телевизор, интернет, софа, сейф, утюг и гладильная доска, шкафчик для лыж с сушилкой для обуви, мини-бар (пополняется ежедневно), все для чая/кофе, ванна, душ, фен, халаты и тапочки.

Площадь номера: 70 м2
Количество гостей: до 4 чел.

Вернуться к описанию курорта
Наталья Нере́тина Наталья Нере́тина
◆ директор отдела продаж
 +7 929 910-90-60

Иван Щенников Иван Щенников
◆ менеджер по туризму
 +7 926 384-99-44