+7 495 740-29-89
пн-пт: 10:00—19:00
сб: 11:00—14:00
Туроператор
АС-тревел
Club Med на Вернадского

Типы номеров
в Club Med Val Thorens Sensations

Вернуться к описанию городка

Горнолыжный курорт Club Med Val Thorens Sensations — это нечто немного другое. Его ультрасовременная архитектура и дизайн далеки от традиционного образа горнолыжного отдыха. Изящная мебель, современные материалы и оттенки розового и бежевого делают его непохожим ни на один отель, где вы были раньше.

Вы можете выбрать из 384 светлых и комфортных номеров трех основных категорий (Супериор, Делюкс и Сьют) с высококлассными интерьерами. Насладитесь волшебным отдыхом и покоем в своем номере, с балкона которого открывается чудесный вид на горнолыжную трассу!

Внимание

Предлагаемые ниже планировки номеров носят информационный характер. Планировка может меняться в зависимости от наличия номеров такого же типа.

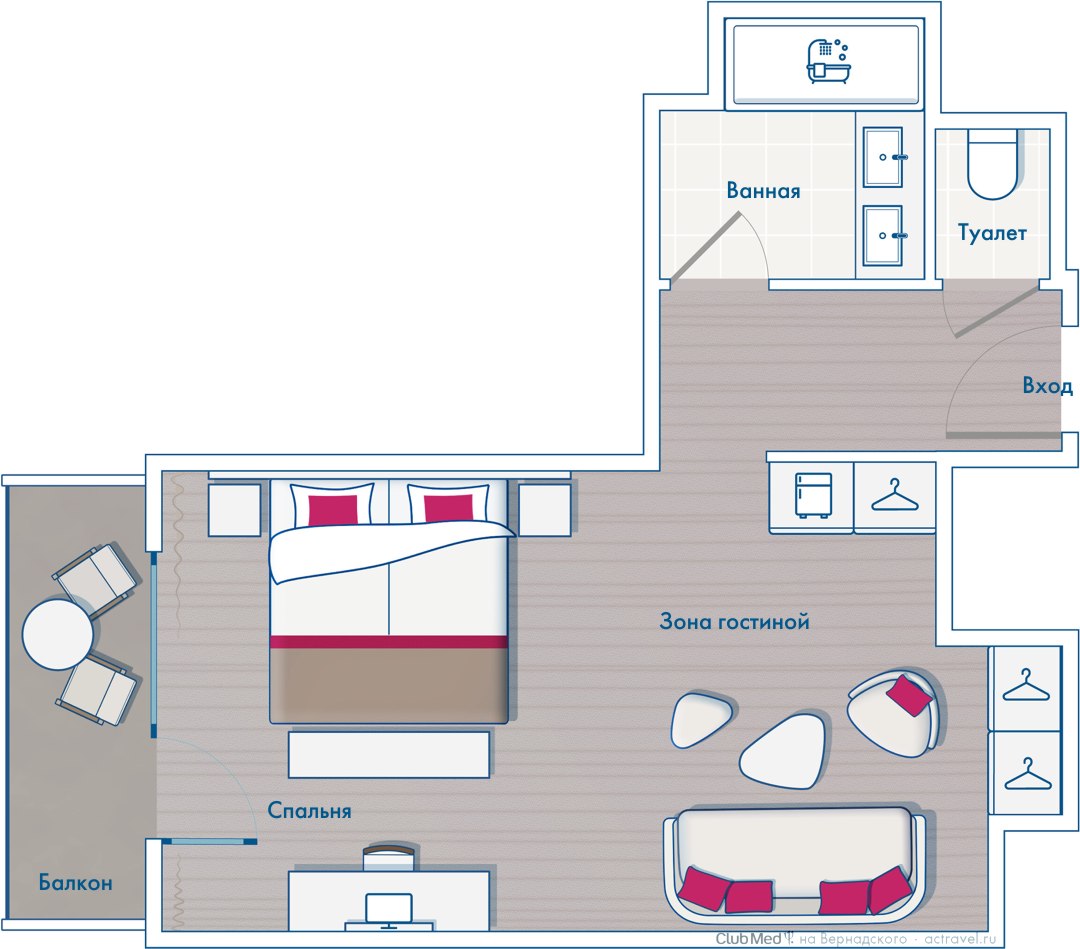
Номер Superuor

C2

План номера Супериор в Club Med Val Thorens

Номер Супериор в городке Club Med Val Thorens Sensations

Ванная комната номера Супериор в городке Club Med Val Thorens Sensations

Всего 38 номеров. Просторный, комфортабельный и элегантный стандартный номер Superuor прекрасно подходит для отдыха после целого дня на открытом воздухе. В большинстве номеров прямой вид на склоны, горы или подъемники.

В номере телевизор, все для чая/кофе, телефон, сейф, доступ в интернет. В ванной комнате ванна, двойная раковина, фен, полотенцесушитель.

Площадь номера: 24—28 м2
Количество гостей: 1—3 чел.

Номер Superior
с видом на горы

C2+

План номера Супериор в Club Med Val Thorens

Номер Супериор в городке Club Med Val Thorens Sensations

Всего 64 номеров на верхних этажах, с которых открывается панорамный вид на горы. В большинстве номеров балкон площадью ок. 3 м2. В интерьере преобладают розовые и бежевые оттенки, что создает уютную и расслабляющую атмосферу.

Площадь номера: 24—28 м2
Количество гостей: 1—3 чел.

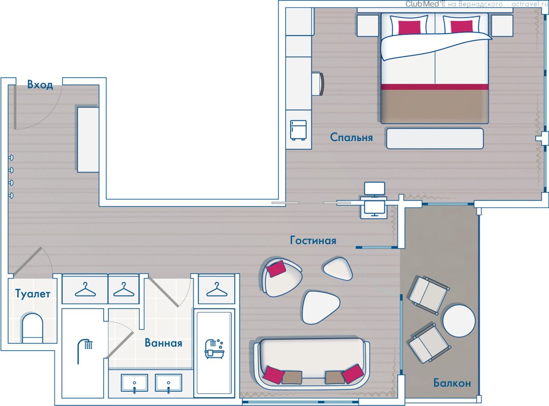
Номер Superior
с балконом

C2B

План номера Супериор в Club Med Val Thorens

Номер Супериор в городке Club Med Val Thorens Sensations

Всего 40 номеров на всех этажах. Нежные, светлые оттенки настроят на расслабляющую волну. Балкон площадью ок. 4 м2. Вид на отель, зданий, трассы и подъемники.

Площадь номера: 24—28 м2
Количество гостей: 1—3 чел.

Объединенные номера 2 × Superior

C2 + C2

План номера Супериор в Club Med Val Thorens

Номера Супериор в городке Club Med Val Thorens Sensations

Всего 43 номера на всех этажах. Идеальное решение для семей, ищущих комфортное размещение. В большинстве номеров балкон площадью 3—4 м2.

Площадь номера: 49—54 м2
Количество гостей: 4—5 чел.

Объединенные номера 2 × Superior
с видом на горы

C2 + C2+

План номера Супериор в Club Med Val Thorens

Номера Супериор в городке Club Med Val Thorens Sensations

Номера на верхних этажах. Наличие двух комнат обеспечивает максимальный комфорт.

Площадь номера: 64 м2
Количество гостей: 4—5 чел.

Объединенные номера Superior и Superior с балконом

C2 + C2B

План номера Супериор в Club Med Val Thorens

Эти просторные и светлые номера расположены на всей территории курорта. С балконов открывается потрясающий вид.

Площадь номера: 48—58 м2
Количество гостей: 4 чел.

Объединенные номера 2 × Superior
с балконом

C2B + C2B

Номера Супериор в городке Club Med Val Thorens Sensations

Номера Супериор в городке Club Med Val Thorens Sensations

Всего 79 номеров на всех этажах. Балкон площадью 4 м2. Вид на отель, здания, трассы и подъемники.

Площадь номера: 49—54 м2
Количество гостей: 4—5 чел.

Номер Superior
для людей с ограниченными возможностями

H2

План номера Супериор в Club Med Val Thorens

Номера Супериор в городке Club Med Val Thorens Sensations

Всего 8 номеров. Большинство с балконом площадью ок. 3 м2. Вид на склоны, горы и трассы.

Площадь номера: 31—38 м2
Количество гостей: 1—2 чел.

Номер Deluxe

A2

План номера Делюкс в Club Med Val Thorens

Номера Делюкс в городке Club Med Val Thorens Sensations

Балкон номера Делюкс в городке Club Med Val Thorens Sensations

Просторный номер категории Deluxe с лаундж-зоной и изысканной атмосферой. Вид на склоны, горы и подъемники.

В номере телевизор, все для чая/кофе, ежедневно пополняемый мини-бар, телефон, сейф, доступ в интернет. В ванной комнате ванна, двойная раковина, фен, полотенцесушитель, халаты и тапочки.

Площадь номера: 24—35 м2
Количество гостей: 1—3 чел.

Объединенные номера Deluxe и Superior

A2 + C2

План номера Делюкс в Club Med Val Thorens

Всего 8 номеров. Отдельные комнаты, которые можно использовать как детскую и родительскую.

Площадь номера: 48—73 м2
Количество гостей: 4—5 чел.

Объединенные номера Deluxe и Superior
с балконом

A2 + C2B

План номера Делюкс в Club Med Val Thorens

Всего 4 номера, подходящих для отдыха всей семьей.

Площадь номера: 48—58 м2
Количество гостей: 4—5 чел.

Номер Deluxe
для людей с ограниченными возможностями

H2A

План номера Делюкс в Club Med Val Thorens

Номер Делюкс в городке Club Med Val Thorens Sensations

Единственный номер. Балкон площадью 3,75 м2. Вид на отель, сконы, горы.

Площадь номера: 43 м2
Количество гостей: 1—2 чел.

Номер Junior Suite

SJ2

План номера Сьют в Club Med Val Thorens

Номера Джуниор сьют в городке Club Med Val Thorens Sensations

Из гостиной, отделенной от спальни, открывается панорамный вид на горы.

В номере гардеробная, софа, телевизор, все для чая/кофе, ежедневно пополняемый мини-бар, телефон, сейф, доступ в интернет. В ванной комнате ванна, двойная раковина, фен, полотенцесушитель, халаты и тапочки.

Площадь номера: 44 м2
Количество гостей: 1—3 чел.

Номер Suite

S2

План номера Сьют в Club Med Val Thorens

Номера Сьют в городке Club Med Val Thorens Sensations

Номера Сьют в городке Club Med Val Thorens Sensations

Номера Сьют в городке Club Med Val Thorens Sensations

Если вы не представляете себе отдых в горах без камина, этот номер создан специально для вас. Сьют расположен на верхнем этаже отеля с потрясающим видом на горы. Терраса полщадью 9 м2.

В номере софа, телевизор, все для чая/кофе, ежедневно пополняемый мини-бар, телефон, сейф, доступ в интернет. В ванной комнате ванна, двойная раковина, фен, полотенцесушитель, халаты и тапочки.

Площадь номера: 54 м2
Количество гостей: 1—2 чел.

Объединенные номера Junior Suite и Superior
с балконом

SJ2 + C2B

План номера Сьют в Club Med Val Thorens

Всего 5 номеров, идеальных для всей семьи. Гостиная и 2 спальни позволят всем уютно разместиться.

Площадь номера: 72 м2
Количество гостей: 4—5 чел.

Объединенные номера Suite и Superior
с балконом

S2 + C2B

План номера Сьют в Club Med Val Thorens

Всего 6 номеров.

Площадь номера: 79 м2
Количество гостей: 4 чел.

Вернуться к описанию городка
Наталья Нере́тина Наталья Нере́тина
◆ директор отдела продаж
 +7 929 910-90-60

Иван Щенников Иван Щенников
◆ менеджер по туризму
 +7 926 384-99-44