
Курорт Cocoon Maldives, открытый в декабре 2016 года, позиционирует себя как «первый дизайнерский отель на Мальдивах».
Сочетание изысканного итальянского стиля с великолепной природой острова создает на курорте неповторимую атмосферу.
Отель предлагает инновационную дизайнерскую концепцию, созданную известной итальянской фирмой Lago. Стеклянные перегородки придают ощущение единения с природой. Все номера окружены растительностью и светом. Элегантная современная мебель изготовлена из ценных пород дерева. Гостей ждет комфорт и незабываемый отдых на роскошных виллах с прекрасными бассейнами.
Курорт отмечен многими престижными наградами, в том числе Haute Grandeur Global Hotel Awards, South Asian Travel Awards или Certificate of Excellence TripAdvisor.
Отель Cocoon занимает остров Уколуфинолу (Ookolhufinolhu)
в южной части атолла Лхавийани (он же Фаадиполу).

Положение отеля Cocoon на карте Мальдивских островов
От международного аэропорта Мале 120 км, перелет на гидросамолете занимает 30 мин.
Остров вытянутой формы, 700 × 140 м (площадь примерно 7 га).

План курорта Cocoon
Гостям доступны 150 номеров в виллах как на берегу, так и на воде.
В каждом номере: Wi-Fi-интернет, кондиционер, вентилятор, сейф, мини-бар, телевизор, чай/кофе, фен, телефон.
50 номеров Beach Villa — виллы на берегу со стороны восхода, общей площадью 50 м2, сгруппированные в блоки на 2 номера.
Номера с открытой планировкой, состоят из спальни с зоной отдыха, туалетной комнаты, ванной комнаты с тропическим душем, террасы с зоной отдыха. Номера с выходом к пляжу, вид на сад и океан.
Максимальное размещение: 3 взрослых или 2 взрослых + 1 ребенок.

План номера Beach Villa
25 номеров Beach Suite — отдельно стоящие береговые виллы на стороне заката, общей площадью 70 м2.
Состоят из спальни с кроватью king-size, зоны отдыха, ванной комнаты открытого плана с тропическим душем, туалетной комнаты, просторной террасы.
Номера с выходом к пляжу, видом на сад и океан. Максимальное размещение: 3 взрослых и 1 ребенок или 2 взрослых и 2 ребенка.

План номера Beach Suite
4 номера Beach Suite with Pool — отдельно стоящие береговые виллы площадью 70 м2 на стороне заката c собственным бассейном.
Состоят из спальни с кроватью king-size, ванной комнаты открытого плана с тропическим душем, туалетной комнаты, террасы с зоной отдыха, внутреннего дворика с бассейном и шезлонгами, выходом к пляжу.
Максимальное размещение: 3 взрослых и 1 ребенок или 2 взрослых и 2 ребенка.

План номера Beach Suite with Pool
5 двойных номеров Family Beach Villa — береговые виллы площадью 100 м2 на стороне рассвета (2 объединенные виллы). №№ 101—102, 103—104, 149—150, 157—158, 159—160.
Семейные номера состоят из просторной спальни с кроватью king-size, зоны отдыха, ванной комнаты открытого плана с тропическим душем, туалетной комнаты, террасы с зоной отдыха. Номера с видом на океан и сад, с выходом к пляжу.
Максимальное размещение: 6 взрослых или 4 взрослых и 2 ребенка.

План номера Family Beach Villa
40 номеров Lagoon Villa — водные виллы площадью 65 м2, стоящие на сваях в лагуне.
Состоят из спальни с зоной отдыха, ванной комнаты с тропическим душем, террасы со спуском в лагуну.
Максимальное размещение: 3 взрослых.

План номера Lagoon Villa
15 номеров Lagoon Suite — водные виллы площадью 70 м2 с джакузи.
Состоят из просторной спальни с кроватью king-size, зоны отдыха с диваном, большой ванной комнаты с ванной и тропическим душем, террасы с зоной отдыха, спуском в лагуну и видом на океан.
Максимальное размещение: 3 взрослых.

План номера Lagoon Suite
5 номеров Lagoon Suite Pool — водные виллы площадью 90 м2 с бассейном.
Состоят из просторной спальни с кроватью king-size, зоны отдыха с диваном, большой ванной комнаты с ванной и тропическим душем, террасы с бассейном, зоной отдыха, спуском в лагуну.
Максимальное размещение: 3 взрослых.

План номера Lagoon Suite Pool
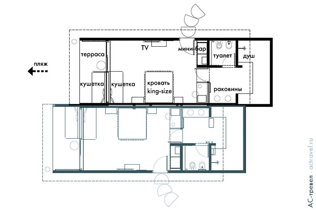
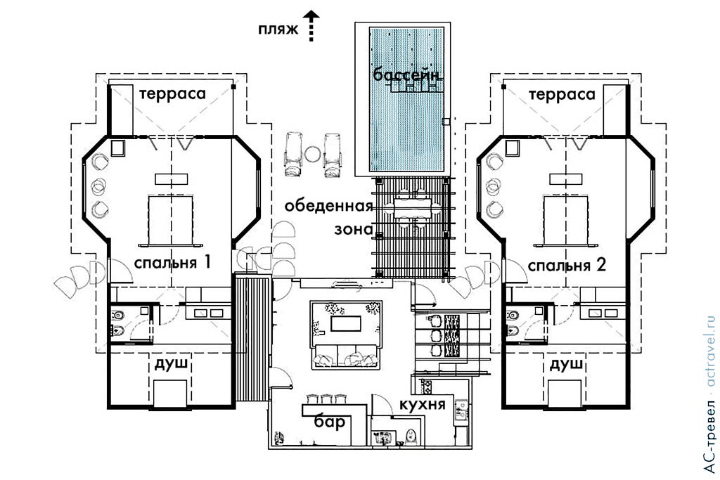
Единственный номер — президентский сьют, Cocoon Suite общей площадью 300 м2, состоящая из двух самостоятельных береговых вилл-спален, виллы-гостиной и обеденной зоны на свежем воздухе. Cобственный бассейн.
Максимальное размещение: 6 взрослых или 4 взрослых и 2 ребенка.

План номера Cocoon Suite

Внешний вид номера Cocoon Suite, бассейн с видом на океан
Octopus («Осьминог») — основной ресторан отеля, работающий по системе «шведский стол». В меню – блюда международной кухни.
За стеклянной стеной находится винный погреб с большим ассортиментом вин.
Ресторан открыт для завтраков, обедов и ужинов.

Главный ресторан курорта, Octopus
Manta («Манта») — ресторан, работающий по меню (a la carte), расположеный на платформе над водой. Идеальное место для романтического ужина при свечах.
В меню блюда международной кухни.

Ресторан Manta
Palm Square («Пальмовый сквер») — ресторан a la carte на открытом воздухе, действительно под пальмами, специализирующийся на блюдах из свежих морепродуктов и отборной говядины, приготовленных на гриле.
Бар Loabiloabi (по-мальдивски «Любовь-Любовь») – бар у бассейна с широким выбором экзотических и фирменных мальдивских коктейлей. Каждый вечер проводятся вечеринки с DJ.
Бар Kurum (игра слов, Kurun bar созвучно мальдивскому названию кокоса, «курумба») — уютный бар возле детского клуба с его гамаками и удобными креслами — прекрасное место для взрослых и детей, где они всегда найдут свои любимые напитки, свежевыжатые соки и закуски.
Cocoon — это отличное место, чтобы увидеть некоторых самых колоритных представителей мальдивской фауны, таких как манты, черепахи, рыбы-наполеоны и серые рифовые акулы. В отеле работает полностью оборудованный дайвинг-центр, управляемый сертифицированными профессионалами.

Погружение со скатом-мантой
В отеле:
SPA-центр отеля Cocoon Maldives предлагаем гостям большой выбор процедур, направленных на омоложение, обновление и расслабление организма.

SPA-центр The Cube
Активных специальных предложений не найдено.
Уважаемые господа! Многие отели делают выгодные спецпредложения ежедневно. Мы не всегда успеваем публиковать на нашем сайте новые цены.
За актуальной информацией обратитесь к вашему менеджеру по тел.: +7 495 740-29-89
Оставайтесь на связи
Забронировать тур, либо уточнить необходимую информацию вы можете у ваших менеджеров-консультантов:
тел.: +7 495 740-29-89, e-mail: ac@actravel.ru

Наталья Нере́тина
директор отдела продаж
+7 929 910-90-60

Иван Щенников
менеджер по туризму
+7 926 384-99-44